センシアベース株式会社

  • お気に入り
  • プライバシーポリシー
  • サイトマップ
センシアベース株式会社

営業時間 / 10:00~19:00 定休日 / 水曜日

中央1丁目貸家. 3階

  • 敷金0
  • ペット可

お問い合わせ番号: 11295056

部屋紹介

ペット対応、バストイレ別、温水洗浄便座、シャンプードレッサー付き物件♪

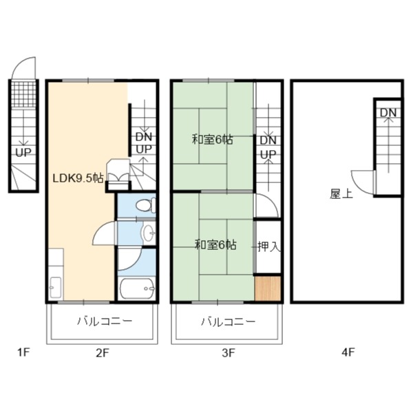
間取り 間取り詳細 面積 賃料 管理費/共益費 敷金(保証金) 礼金 採光向き
2LDK LDK 9.5畳
和室 6畳
和室 6畳
53.64㎡ 成約済 成約済 成約済 成約済 西

物件写真

物件情報は代表的なお部屋を掲載しております。
建物内の別の間取りでも空室がある場合がございます。
ご指名物件の空室待ちなども受付けておりますので、お電話かメールにてスタッフまでお申付下さい。
※写真や図と現況が異なる場合は現況を優先させていただきます。

部屋紹介

間取り 2LDK
間取り詳細 LDK 9.5畳 、 和室 6畳 、 和室 6畳

物件概要・設備

物件種別 一戸建
物件名 中央1丁目貸家.
物件所在地 大阪府大阪市城東区中央1丁目
交通機関
  • OsakaMetro長堀鶴見緑地線「蒲生四丁目駅」より徒歩7分
  • JRおおさか東線「JR野江駅」より徒歩8分
  • 京阪本線「野江駅」より徒歩8分
  • OsakaMetro谷町線「野江内代駅」より徒歩15分
周辺施設
  • スーパー: 業務用食品館城東中央店 距離131m
  • コンビニ: ファミリーマート城東中央二丁目店 距離90m
  • 病院: 特定医療法人有隣会東大阪病院 距離208m
  • 郵便局: 城東蒲生郵便局 距離415m
  • 銀行: 京都銀行城東支店 距離253m
  • 飲食店: コメダ珈琲店蒲生4丁目西店 距離178m
  • ショッピングセンター: ファッションセンターしまむら京橋店 距離709m
  • ドラッグストア: コクミンドラッグ蒲生四丁目駅店 距離275m
特記事項 リフォーム、子供可、二人入居可、ネコ可、ペット対応
賃料 成約済 管理費/共益費 成約済
敷金 成約済 礼金 成約済
フリーレント - 保険 年 円
間取り 2LDK 面積 53.64㎡
採光向き 西 契約形態 普通契約 2年
所在階 3階 入居可能日 即日
総戸数 1戸 竣工月 1976年11月
建築構造 鉄骨 建物階建 地上3階 
駐車場 - 駐車料 -
火災保険 鍵交換代 成約済
保証会社 -
諸経費 成約済
設備 ガス(都市ガス)、インターホン(TVモニター付き)、駐輪場、バイク置き場、日当り良好、眺望良好、通風良好、フローリング、メゾネット、照明器具、ベランダ・バルコニー、クローゼット、クローゼット数(3)、全居室収納、物置、押入れ、下駄箱、バス・トイレ別(別室)、シャワー、脱衣所、温水洗浄便座、洗面所独立、シャンプードレッサー、三面鏡付き洗面化粧台、洗面所にドア、コンロ種類(都市ガス)、BS、CS、CATV、有線、光ファイバー、CATVインターネット、LAN、ISDN
備考

近隣マップ

中央1丁目貸家. へのお問い合わせ

センシアベース株式会社

06-6939-3333

お問い合せ番号: 11295056

所在地 〒536-0004 大阪府大阪市城東区今福西2-5-1
営業時間 10:00~19:00 定休日 水曜日